
消氣過濾器(SXQ型) Air-Removed Filter

消氣過濾器是流量計附屬設備,他具有消氣、過濾液體中固體雜質的作用,從而保證流量計的計量精度,延長流量計的使用壽命。
Air-removed filter series is the attached device of the flow meter,which can remover the air and solid impurity so as to ensure the flow metre accuracy and operation life.
消氣過濾器“設備材質” Materials of construction:
NO | 1 | 2 | 3 | 4 | 5 |
構件 Component | 殼體 Body | 濾網 Screen Mesh | 排污堵頭 Drainage nozzle | 密封件 Gasket | 螺栓/螺母 Bolt/Nut |
材質 Material | CS SS H62 CS襯PTFE | 304 316L PTFE | CS 304 316L PTFE | 金屬纏繞 PTFE | 304 316L |
注:連接標準:HG 、GB、 ANSI、 JIS、 DIN等等.
Standard Connection:HG、GB、ANSI、JIS、DIN、ect.
操作壓力:0.6MPa——5.0MPa (150Lb——600Lb)
Operating Pressure:0.6MPa——5.0MPa (150Lb——600Lb)
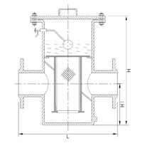
消氣過濾器“尺寸表” Dimension table:
DN | L | H | H1 |
40 | 300 | 400 | 170 |
50 | 300 | 440 | 170 |
80 | 400 | 590 | 180 |
100 | 500 | 630 | 280 |
150 | 700 | 870 | 280 |
消氣過濾器“訂貨須知” Order Construction:
1、訂貨時請注明尺寸、操作壓力、濾芯材質、過濾介質及過濾精度。
Please give indication of dimension,operating pressure。Filter element type,filter medium andpore size.
2、當需要其他標準法蘭、材質或操作壓力時請在訂貨時注明。
Please give clear indication of flange,material and operating if you need other standard.
高效Y型過濾器介紹及詳細參數
2014-09-23“Y型過濾器”過濾出來活化水
2014-12-08使用Y型過濾器帶來大化的利益
2014-09-14自動清洗過濾器,以解決水源污染等問題,以保護環境的家園
2016-06-26Y型過濾器的優點和發展趨勢
2014-09-04如何挑選一款合適的“高效Y型過濾器”
2014-11-29Y型過濾器有效過濾空氣中的雜質
2014-08-23卓澤環保的Y型過濾器你能了解多少呢?
2015-06-17濾油器的分類與選取要點
2014-12-08研究人員利用從樹上提取的纖維素纖維制造水過濾器
2017-03-21